3 TINY HOUSES Charmey
Implanté sur les pentes de Charmey, au cœur des Préalpes fribourgeoises, ce projet se compose de trois volumes modestes perchés sur un terrain abrupt. Répondant au souhait du client de réunir trois générations, l'architecture privilégie la simplicité, la durabilité et l'authenticité dans une démarche de sobriété assumée.
À l'inverse des implantations habituelles suivant les courbes de niveau, les bâtiments s'insèrent ici perpendiculairement à la pente. Ce parti pris libère des coulées vertes, préserve la perméabilité vers le village et intègre harmonieusement les habitations au sein d’un verger existant.
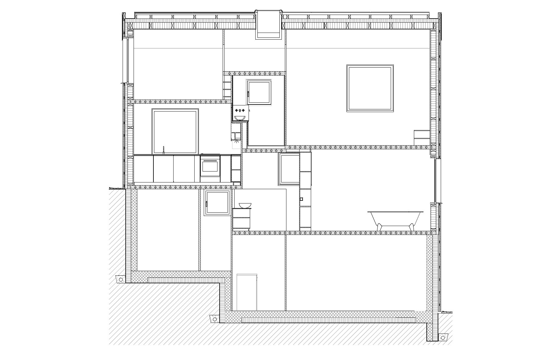
L’emprise au sol minimale (4 m x 10 m) limite l’impact sur le site et renoue avec les proportions des constructions en bois traditionnelles. La structure en ossature bois, les dalles en bois massif local et la façade en bois brûlé, ainsi que l’absence de parements intérieurs, affirment la radicalité constructive du projet.
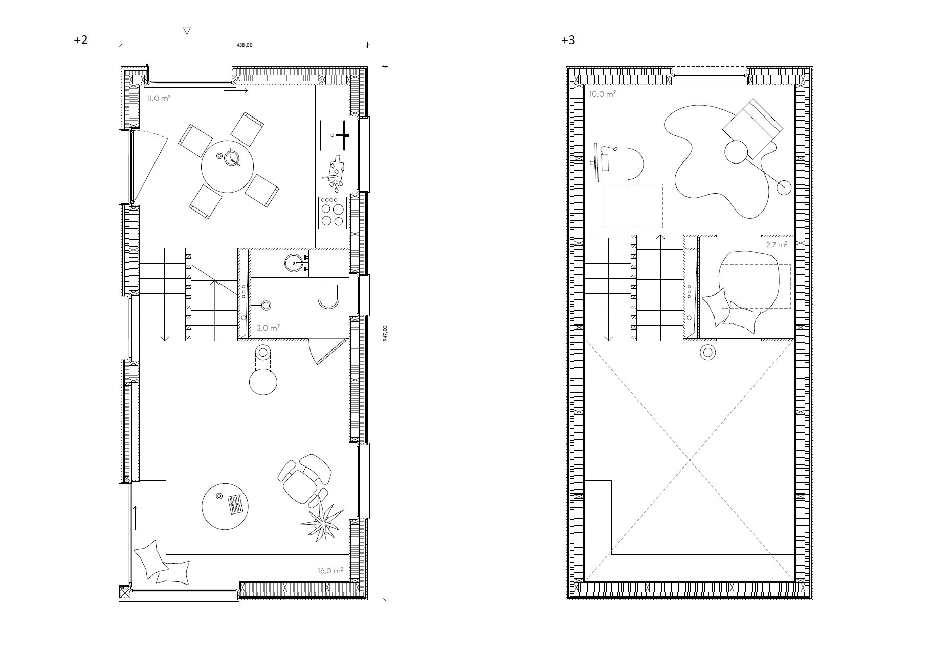
À l'intérieur, l'espace s'articule sur six demi-niveaux reliés par un escalier ajouré, optimisant chaque mètre carré au profit de volumes de vie ouverts et fluides. Un plateau extérieur entre les trois volumes met en relation de plain-pied l’aval des deux volumes du haut (entrées) avec l’amont du volume du bas (cuisine) et crée ainsi un espace extérieur de rencontre pour les habitant-e-s.
À l'inverse des implantations habituelles suivant les courbes de niveau, les bâtiments s'insèrent ici perpendiculairement à la pente. Ce parti pris libère des coulées vertes, préserve la perméabilité vers le village et intègre harmonieusement les habitations au sein d’un verger existant.
L’emprise au sol minimale (4 m x 10 m) limite l’impact sur le site et renoue avec les proportions des constructions en bois traditionnelles. La structure en ossature bois, les dalles en bois massif local et la façade en bois brûlé, ainsi que l’absence de parements intérieurs, affirment la radicalité constructive du projet.
À l'intérieur, l'espace s'articule sur six demi-niveaux reliés par un escalier ajouré, optimisant chaque mètre carré au profit de volumes de vie ouverts et fluides. Un plateau extérieur entre les trois volumes met en relation de plain-pied l’aval des deux volumes du haut (entrées) avec l’amont du volume du bas (cuisine) et crée ainsi un espace extérieur de rencontre pour les habitant-e-s.
Lieu: Charmey FR
Maître d'ouvrage: Privé
Année: 2020-2024
Statut: Chantier































