HABITATIONS SUBV. Seelisberg
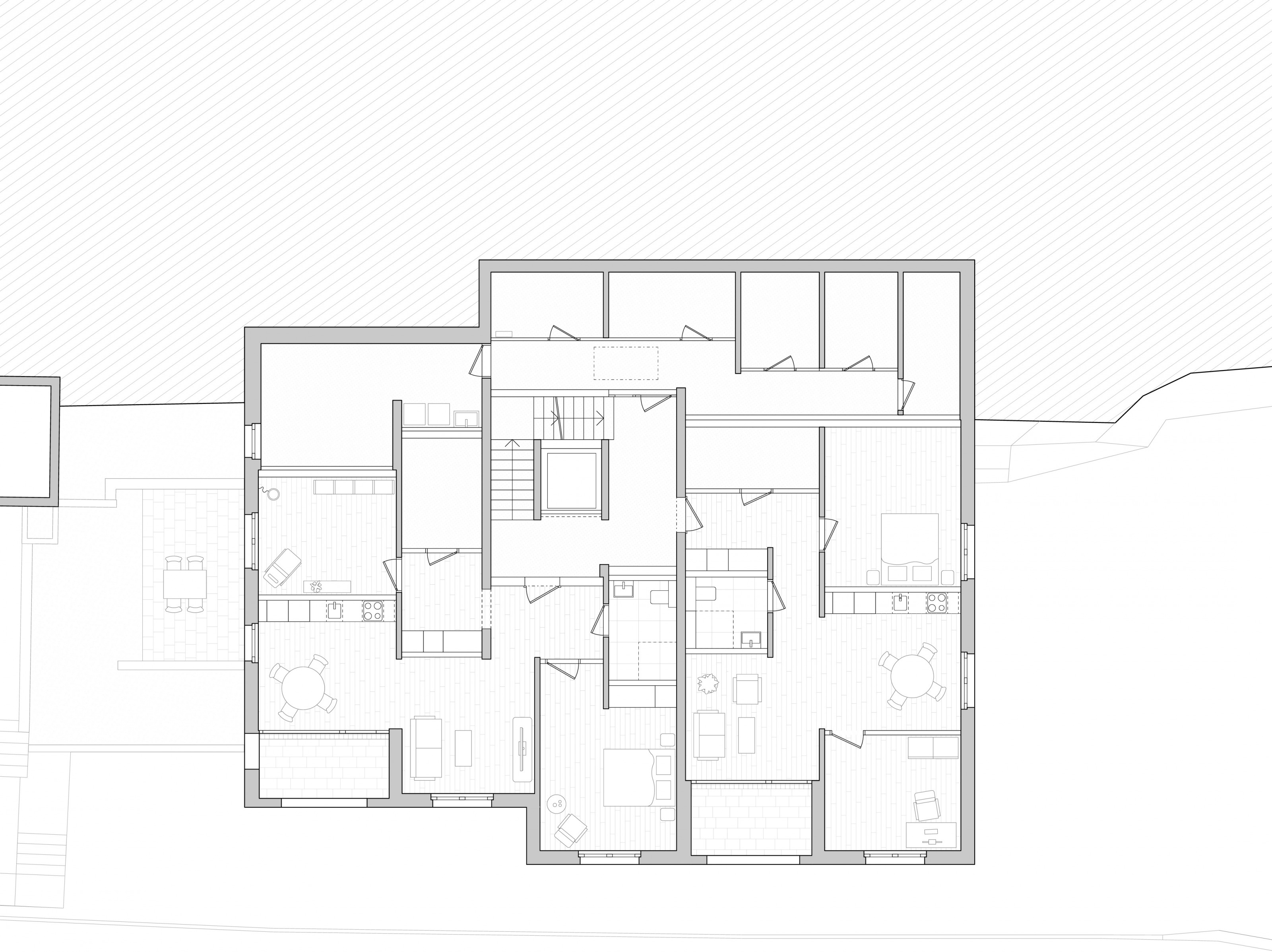
Alpenblick est un projet de 8 logements subventionnés pour personnes agés situé au centre du village de Seelisberg le long de la route principale. Cela garantit l'intégration des utilisateurs à la vie villageoise tout en renforcant le tissu urbain.
Lieu: Seelisberg UR
Maître d'ouvrage: Fondation
Année: 2016-
Statut: Terminé











